Assisted Living


The McAuley Assisted Living Floorplans

The McAuley offers beautiful studio, one- or two-bedroom pet-friendly residences. Live your best life by selecting the floorplan that suits your style!

The McAuley Assisted Living Residences include*

  • Well-appointed full-size kitchen
  • 24-hour licensed care
  • Three chef-prepared meals daily
  • Emergency pull cord in residence 
  • Weekly housekeeping and linen service
  • Paid utilities: electric, heat, air conditioning, water
  • Interior equipment and appliance maintenance
  • 24-hour concierge
  • Local transportation to medical and religious appointments
Not an all-inclusive list of amenities.
The Bushnell

The Bushnell

 

1 Bed

 

1 Bath

 

Kitchen

 

818 Sq-ft
Expand Floor Plan View
The Stevens

The Stevens

 

Studio Bed

 

1 Bath

 

Kitchen

 

592 Sq-ft
Expand Floor Plan View
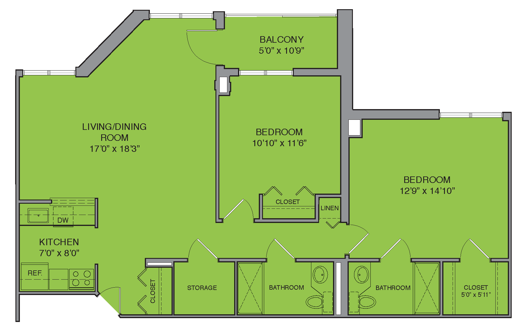
The Stowe

The Stowe

 

2 Bed

 

2 Bath

 

Kitchen

 

1,118 Sq-ft
Expand Floor Plan View
The Wadsworth

The Wadsworth

 

1 Bed

 

1 Bath

 

Kitchen

 

620 Sq-ft
Expand Floor Plan View