Floorplans


St. Joseph Pines Independent Living Floorplans 

St. Joseph of the Pines offers a wide variety of floorplans, including pet-friendly options. Live the life you envisioned by selecting the setting that suites your unique style, then choose the perfect floorplan for your new home!

Carefree Living at St. Joseph of the Pines

Independent Living Residences include*

  • All utilities plus extended basic cable
  • A generous monthly food and beverage plan
  • Housekeeping, maintenance, grounds keeping, and trash removal
  • 24-hour security
  • Scheduled local transportation to physician appointments
  • Access to higher levels of care

 

Not an all-inclusive list of amenities.

 

Two Unique Settings 

St. Joseph of the Pines offers an outstanding value for a high quality lifestyle and services when compared to other retirement living alternatives within the region. Residents enjoy the conveniences of comfortable, maintenance-free living as well as fine and casual dining and access to beautiful amenities throughout our campus.
 
Select between Pine Knoll offering an upscale nostalgic setting or Belle Meade's resort-style residences. Not sure which is right for you? Let our knowledgeable team assist you on your journey to select your next home!
 

 

Belle Meade

Wellington

Wellington

 

2 Bed

 

2 Bath

 

Kitchen

 

1,205 Sq-ft
Expand Floor Plan View
Cotswold

Cotswold

 

2 Bed

 

2 Bath

 

Kitchen

 

1,366 Sq-ft
Expand Floor Plan View
Avington

Avington

 

2 Bed

 

2 Bath

 

Kitchen

 

1,454 Sq-ft
Expand Floor Plan View
Dorset I

Dorset I

 

2 Bed

 

2 Bath

 

Kitchen

 

1,518 Sq-ft
Expand Floor Plan View
Dorset II

Dorset II

 

2 Bed

 

2 Bath

 

Kitchen

 

1,620 Sq-ft
Expand Floor Plan View
Windsor

Windsor

 

2 Bed

 

2 Bath

 

Kitchen

 

1,728 Sq-ft
Expand Floor Plan View
Essex floor plan

Essex Home

 

2 Bed

 

2 Bath

 

Kitchen

 

2099 Sq-ft
Expand Floor Plan View
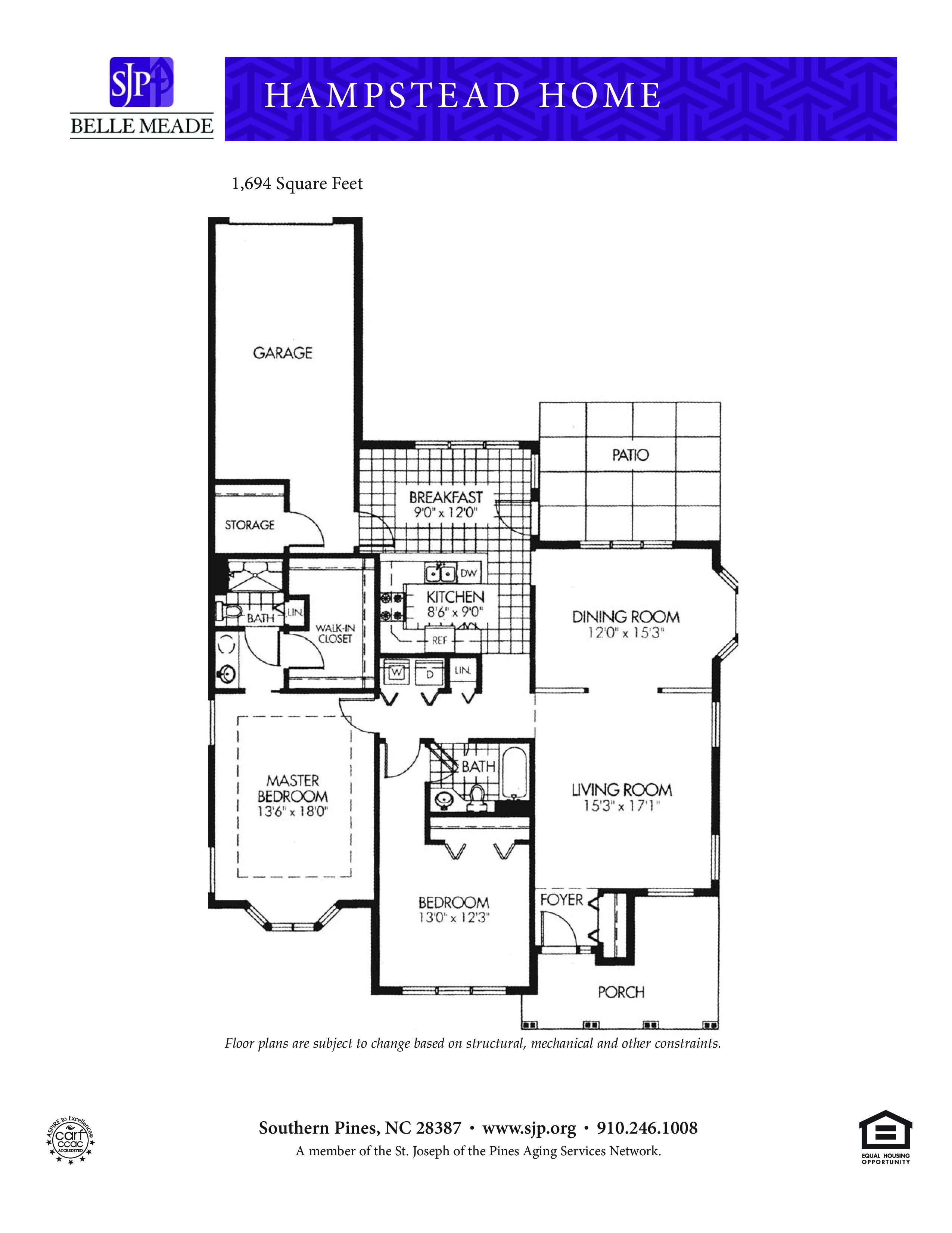
Hampstead

Hampstead

 

2 Bed

 

2 Bath

 

Kitchen

 

2,047 Sq-ft
Expand Floor Plan View
Prescott

Prescott

 

2 Bed

 

2 Bath

 

Kitchen

 

2,047 Sq-ft
Expand Floor Plan View
Home Sterling

Home Sterling

 

2 Bed

 

2.5 Bath

 

Kitchen

 

2,123 Sq-ft
Expand Floor Plan View
Sterling Cottage floor plan

Sterling Cottage

 

2 Bed

 

2 Bath

 

Kitchen

 

2473 Sq-ft
Expand Floor Plan View
Somerset

Somerset

 

1 Bed

 

1 Bath

 

Kitchen

 

962 Sq-ft
Expand Floor Plan View

 

Pine Knoll

Ashemore

Ashemore

 

2 Bed

 

2 Bath

 

Kitchen

 

1,295 Sq-ft
Expand Floor Plan View
Bickleigh

Bickleigh

 

2 Bed

 

2 Bath

 

Kitchen

 

1,322 Sq-ft
Expand Floor Plan View
Scotsgrove

Scotsgrove

 

2 Bed

 

2 Bath

 

Kitchen

 

1,344 Sq-ft
Expand Floor Plan View
Kingston

Kingston

 

2 Bed

 

2 Bath

 

Kitchen

 

1,618 Sq-ft
Expand Floor Plan View
Lampford

Lampford

 

1 Bed

 

1 Bath

 

Kitchenette

 

573 Sq-ft
Expand Floor Plan View
Halsford

Halsford

 

1 Bed

 

1 Bath

 

Kitchen

 

999 Sq-ft
Expand Floor Plan View
Upton  villa

Upton Villa

 

1 Bed

 

1 Bath

 

Kitchenette

 

720 Sq-ft
Expand Floor Plan View
Newland Villa map

Newland

 

2 Bed

 

2 Bath

 

Kitchenette

 

836 Sq-ft
Expand Floor Plan View
Woodleigh Cottage

Woodleigh Cottage

 

2 Bed

 

2 Bath

 

Kitchen

 

1211-1551 sq. ft.
Expand Floor Plan View